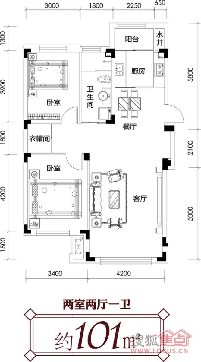
尊誉东方 10-13# 两室两厅一卫 101㎡-2室2厅1卫-101.0㎡
售罄
余房查询
咨询户型优惠
待定
(供参考)
2室2厅1卫
101.0平米
暂无
暂无
暂无
暂无
400-616-2877 转 236043

微信扫码,快速拨打
近期如有看房活动,请通知我
已有19人报名
立即报名
尊誉东方楼盘点评
0人评价了该楼盘
查看更多
抱歉~当前星级下暂无精华贴
暂无消息/评论/回答
0.0
综合评分
0.0
价格
0.0
地段
0.0
交通
0.0
配套
0.0
环境
写点评
0
综合评分
自动计算评分结果